Medidas de un aparato de aerotermia ¿Qué dimensiones tiene una bomba de calor?
- Escrito por Idoia Arnabat CALORYFRIO
Los sistemas de aerotermia han supuesto toda una evolución en el sector de la climatización. Las bombas de calor, que utilizan la aerotermia como fuente de energía renovable, aprovechan la energía almacenada en forma de calor en el aire que nos rodea y que nos permite cubrir la demanda de calefacción, agua caliente sanitaria y refrigeración en un local o vivienda.
Las bombas de calor consumen electricidad y producen energía térmica, pero de una forma altamente eficiente. Por cada Kw eléctrico que utiliza una bomba de calor en modo calefacción, obtiene 4,5 kW de calor.
Sin embargo, una de las dudas a las que se enfrenta un consumidor que quiere instalar aerotermia en su hogar es el tamaño de sus equipos. ¿Qué medidas tiene un aparato de aerotermia? Pondremos algunos ejemplos de distintos aparatos de aerotermia del mercado para hacernos una idea.
Lo primero que debemos saber es que un equipo de aerotermia consta generalmente de dos partes: una unidad interior y una unidad exterior.
Dimensiones de una unidad interior de aerotermia
El diseño de las bombas de calor que se comercializan en el mercado ha ido evolucionando hacia equipos cada vez más compactos, orientados a la reposición de calderas o termos en apartamentos de viviendas rehabilitados.
Existen bombas de calor que se instalan en el exterior de la vivienda y lo único que tienes que colocar dentro es un pequeño depósito de ACS de unos 150 litros.
Pondremos como ejemplo un equipo de bomba de calor ECODAN de Mitusbishi Electric. En este equipo, la unidad interior tiene una altura de 1.600 mm, una anchura de 595 mm, un fondo de 680 mm y un peso, según se encuentre vacío o lleno, de entre 104 y 310 kg; lo que facilita su adaptación a cualquier espacio.
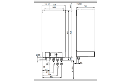
Otro ejemplo que podemos compartir es el de las bombas de calor Vitocal. En este caso, como podemos apreciar en las imágenes de su ficha técnica, los tamaños de las unidades interiores varían mucho de una gama a otra, dependiendo de su capacidad de almacenamiento interno de agua caliente o incluso de su pontencia.


Dimensiones de una unidad exterior de aerotermia
Mostramos a continuación otro ejemplo de las dimensiones de una unidad exterior de aerotermia. Como en el caso de las unidades interiores, el tamaño de estos equipos puede variar dependiendo del modelo y su potencia.

¿Te ha resultado útil? Compártelo
Artículos relacionados
- Nuevas bombas de calor KAIZEN HT-P con refrigerante natural R290: eficiencia, confort y sostenibilidad
- Integración de la aerotermia en las instalaciones del sector terciario
- ¿Puedo instalar bomba de calor en la fachada? Esto es lo que dice la Ley de Propiedad Horizontal tras su última actualización
- Q-ton de Mitsubishi Heavy Industries, la bomba de calor pionera para la producción de Agua Caliente Sanitaria
- Aerotermia con radiadores: ¿vale la pena?





